Дорогие друзья!
Новый год бывает только раз в году! 😊 Наступил год Дракона и период начала года – энергетически сильный, делать активизации в это время хорошо.
Поэтому предлагаем вам несколько активизаций для богатства!
На всякий случай напоминаем, что активизации – это только положительный импульс, который может подтолкнуть деньги в вашу сторону (или вас в сторону денег). Гораздо важнее для финансовой стабильности и новых достижений два аспекта: что у вас происходит в карте Бацзы в текущем году и грамотно отрегулированный Фэн Шуй. Если вы знаете, какие энергии несет для вас год, какие месяцы больше подходят для активной работы и продвижения – вы сможете спланировать свою активность правильно. А хороший Фэн Шуй поддержит все ваши начинания и не даст совершить ошибки. Все об энергиях года в нашем вебинаре «Готовимся к году Дракона».
Ну, а теперь активизнем пространство! 😉
Измерения
Для того, чтобы сделать эти активизации, вам понадобится план квартиры и компас. Компас вы можете купить в спортивном магазине или военторге, измерения для этих активизаций проводятся на улице и затем переносятся на план.
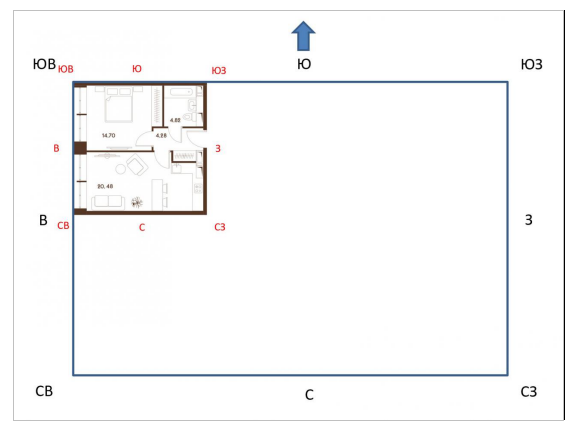
Встаньте в 1,5 метрах от входа в подъезд, лицом к нему и измерьте направление, в котором выходите из подъезда. Для этого надо совместить северный конец стрелки с направлением Север, а затем посмотреть на ближайший к себе градус на компасе. На картинке ниже направление двери – запад.

Предположим, вы вышли на улицу и измерили направление подъезда – это оказался, к примеру, юг. Дальше нарисуйте свой дом, в нем – квартиру и распишите по кругу стороны света. Если не помните, в каком порядке они расположены, учебник 2-го класса общеобразовательной школы вам в помощь!
Точно также, как стороны света оказались расписанными вокруг дома, аккуратненько перенесите их на квартиру. Теперь вы знаете, как ваша квартира расположена относительно сторон света.

Теперь вам нужно взять кругленький шаблончик 24 гор (вот такой у нас продается, но можете просто распечатать и вырезать из прозрачной пленки) и наложить его на план в соответствии со сторонами света и тем градусом направления двери, который вы намеряли. И мы будем ставить Копилку богатства.

Копилка богатства
Если у вас есть красивая копилка – берите ее, если же нет, подойдет любая ваза, кувшин, графин с узким горлом (но, чтобы монеты пролезали). Можете поиграть со своим Бацзы, если его знаете, взять копилку цвета своего элемента Богатства. Если не знаете, то лучше брать копилку желтого цвета или из керамики, но это не так важно.

Найдите СВ-1 (23° – 37°) – этот вариант получше – или ЮЗ-1 (203°-217°). Сюда нужно будет поставить копилку в определенный день и час и в течение 40 дней закидывать в нее по одной монетке. Копилка должна стоять здесь до конца 2024 года. Важно! Дни нельзя пропускать, поставьте себе напоминание в телефон. Час надо смотреть по местному времени для своего города, в календаре.
Даты:
- 6 февраля, час Обезьяны или Свиньи. Не подойдет тем, кто рожден в год или день Лошади
- 8 февраля, час Лошади. Не подойдет тем, кто рожден в год или день Обезьяны
- 9 февраля, час Змеи. Не подойдет тем, кто рожден в год или день Петуха
Вопросы:
1. Что делать с прошлогодней копилкой? Можно или достать деньги и потратить на что-то, связанное с процветанием для себя или дома. Или же, если вы про нее забыли - переставить и копить дальше.
2. Что потом делать с копилкой в течение года? См пункт 1.
Пробуждение ци помещения
Еще одна активизация. Ее можно делать не только в квартире, но и в офисе, магазине. В жилом помещении обязательно учитывайте даты рождения всех членов семьи. В офисе – хотя бы тех, кто будет проводить активизацию или сидит недалеко от входа.
Итак, возьмите план и расчертите его на 9 секторов соответственно направлениям сторон света:

Посмотрите, в какой сектор попала входная дверь. В указанные ниже даты «пошаманьте» в секторе: откройте дверь, поставьте вентилятор, сделайте влажную уборку, позвените колокольчиком. Саму дверь также можно протереть, помыть.
Нельзя ставить вентилятор на западе (если Летящие звезды помещения работают по реальным сторонам света), то есть там, куда в феврале прилетела 5 желтая года. В примере как раз дверь оказалась на западе, поэтому максимум, что можно здесь себе позволить – это влажная уборка без перестановки мебели.
Давайте сразу договоримся, если вы знаете Летящие звезды своего пространства, где хотите поставить активизацию – можно ставить вентилятор и активничать в секторе двери в указанные часы. Если не знаете – используйте только влажную уборку, классическую музыку и колокольчик! Позвените колокольчиком и повесьте его на дверь, как защиту от пятерки, если сектор ею поврежден. Не шумите, не двигайте мебель. В конце концов в любом месте дома время от времени надо убираться и мыть пол. Если боитесь «пятерки» – просто ничего не делайте.
Если ваша дверь на:
Юге
- 10 февраля, час Быка. Не подойдет тем, кто рожден в год или день Собаки
- 19 февраля, час Петуха. Не подойдет тем, кто рожден в год или день Козы
Юго-западе
- 1 марта, час Быка. Не подойдет тем, кто рожден в год или день Лошади
- 2 марта, час Свиньи. Не подойдет тем, кто рожден в год или день Козы
Западе (только влажная уборка)
- 15 февраля, час Обезьяны. Не подойдет тем, кто рожден в год или день Кролика
- 17 февраля, час Кролика. Не подойдет тем, кто рожден в год или день Змеи
Северо-западе
- 9 февраля, час Быка. Не подойдет тем, кто рожден в год или день Петуха
- 17 февраля, час Свиньи. Не подойдет тем, кто рожден в год или день Змеи
Севере
- 10 февраля, час Петуха. Не подойдет тем, кто рожден в год или день Собаки
- 17 февраля, час Козы. Не подойдет тем, кто рожден в год или день Змеи
Северо-востоке
- 6 февраля, час Свиньи. Не подойдет тем, кто рожден в год или день Лошади
- 8 февраля, час Кролика. Не подойдет тем, кто рожден в год или день Обезьяны
Востоке
- 6 февраля, час Свиньи. Не подойдет тем, кто рожден в год или день Лошади
- 11 февраля, час Дракона. Не подойдет тем, кто рожден в год или день Свиньи
Юго-востоке
- 17 февраля, час Обезьяны или Собаки. Не подойдет тем, кто рожден в год или день Змеи
- 18 февраля, час Козы. Не подойдет тем, кто рожден в год или день Лошади
Удачных активизаций и побольше денег в 2024! 😊




Добрый день. Скажите, пожалуйста: