Короткая, но довольно важная тема. Основная работа в процессе консультации происходит с планировками. Обычно при начале работы заказчик даёт план БТИ. Он подходит только для ознакомления и им нельзя пользоваться в дальнейшей работе, часто бывает, что размеры не сходятся, либо были перепланировки, которые в этих планах не учтены. Планы БТИ всегда нужно перепроверять и любые другие тоже, если кто-то сделал их до вас.
Пример плана БТИ:

Не нужно делать подробные обмерочные планы, достаточно проверить общие габариты помещений – этого хватит для расчёта Летящих Звёзд (ЛЗ) и Бацы-Фэншуй. Это может сделать как сам заказчик, так и консультант на месте.
Для Звёзд нужно проверить соответствие расположения комнат на плане с реальным на месте. На примере ниже существует большой проём между кухней и гостиной, который их соединяет и не отмечен на плане БТИ, что уже даёт одну комбинацию ЛЗ, а не 2, как бы мы сделали по исходному плану.

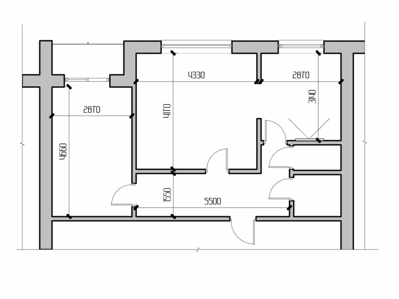
Для Бацы-Фэншуй достаточно будет пройтись по всем габаритным размерам помещений и общему размеру квартиры, чтобы «поймать» нужные «горы». На примере в помещении гостиной размеры отличаются на 60 см, а в коридоре на 1 метр. По этим стенам, в данном примере, ничего важного нет, но если бы это была спальня и необходимо расположить кровать в определённую гору, то мы бы благополучно могли промахнуться.

После обмеров делается чистовой новый план с новыми размерами:

Далее Вы наносите текущее расположение мебели и работаете с корректной планировкой. Точно и уверенно, что всё соответствует действительности:

После замеров по Лопаню анализируются дворцы, звёзды и горы. В этом этапе важно соблюдать масштаб, чтобы кровати, другая мебель и различное оборудование соответствовало реальным размерам.

После проведённой предварительной работы возможно уже полноценно провести консультацию и рекомендовать корректировки и подготовить расчёты активизаций.


Домашнее задание: Если вы ещё не делали обмеры своей квартиры, то пройтись по комнатам, сделать основные замеры и сравнить с текущими.
Дмитрий Баров
Всех желающих изучать Фэн Шуй ждем:






Добрый день! Благодарю за статью. А какой программой Вы пользуетесь для окончательной разметки и нанесения мебели?