Про Бачжай мы рассказали вам в предыдущей статье. Я Бачжай практически не применяю – хватает Летящих Звезд и Бацзы-фэншуй.
Однако, триграммы можно использовать в анализе окружающего пространства достаточно просто.
Как вы знаете, каждая триграмма связана с рядом ассоциаций:

Если изучать триграммы подробнее, вы узнаете еще длинный список соответствий: с ландшафтом, животными и растениями, профессиями и так далее. Это очень увлекательно, но у начинающих часто возникает вопрос: куда бы это все приспособить, как применить?
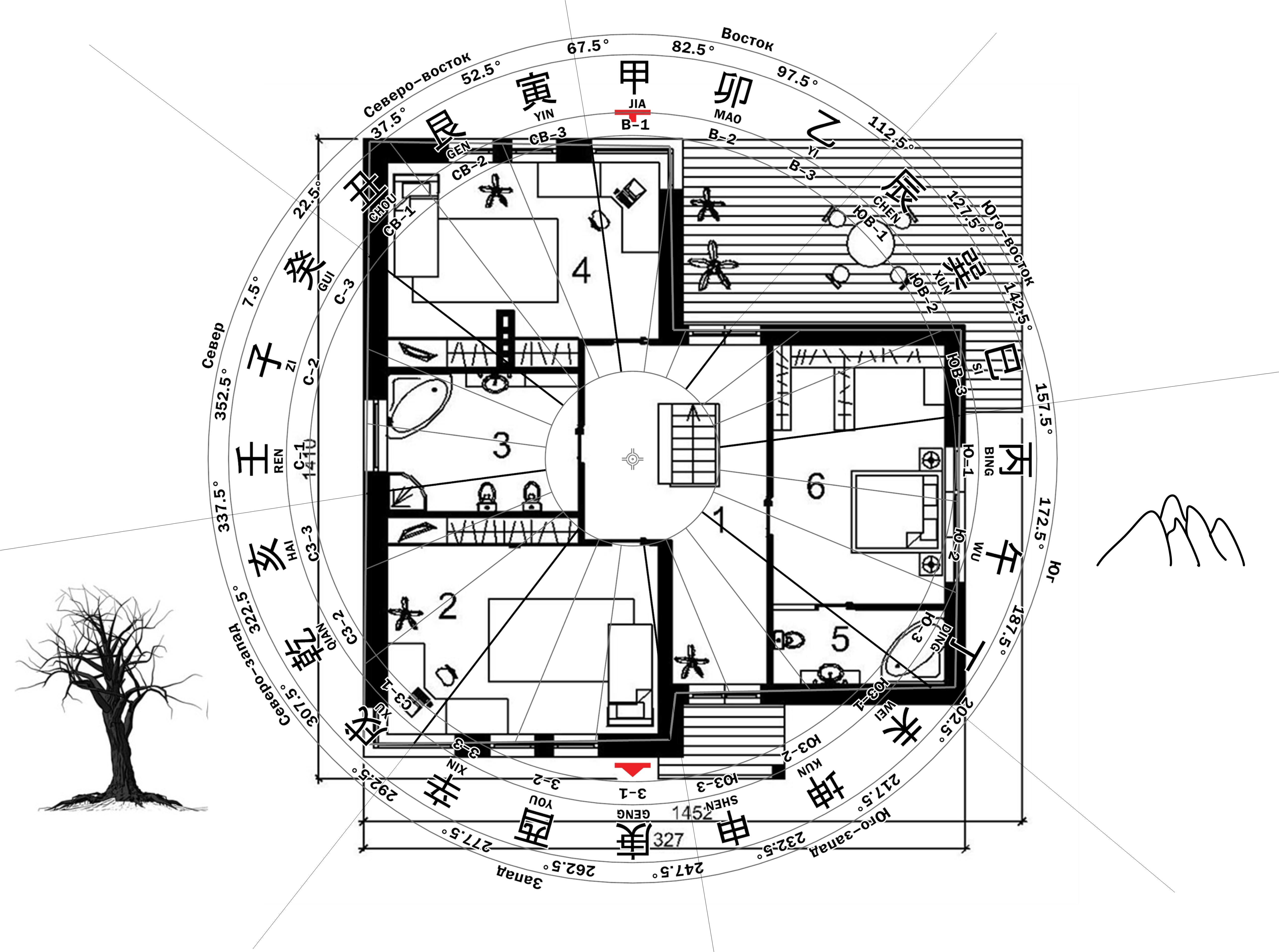
На первых порах вам будет достаточно простой схемы, которую вы видите здесь. Особенно хорошо она работает с частными домами, но также ее можно использовать и в квартирах.
Сначала определитесь со сторонами света. Очень точные замеры нам тут не нужны, поэтому можно воспользоваться нашим Шаблоном 24 горы. Он работает на картах Яндекс и Google.
Найдите свой дом, поставьте перекрестье шаблона над квартирой – вы увидите направление сторон света вокруг дома. Точно также можно сделать с частным домом. Не обращайте внимания на сектора внутри направления (например Ю-1, Ю-2, Ю-3). Они называются «горы» и пригодятся нам только для летящих звезд.
Теперь, взяв, глядя на план с направлениями и шпаргалку, можно провести небольшое исследование.
В первую очередь посмотрите на всяческие ша, особенно, расположенные близко от дома.
Для многоквартирных домов (смотрим нижние этажи, на одном уровне с ша, в первую очередь) это:
- недострои
- полуразрушенные старые здания
- вышки ЛЭП
- стройки
- железная дорога
- скоростная трасса
- ша шума (любые объекты, издающие сильный шум)
- угол соседнего дома
Для частных домов:
- все вышеперечисленное
- сухие или сломанные деревья
- острые камни
- острые, угрожающие объекты
- заросшие и цветущие прудики
Любые ша – это «намеки пространства о том, что что-то не так. Энергия таких направлений как бы подспудно раздражена, нарушена. О чем же намекает пространство?
Глядим на схему: если есть ша с какого-то направления, то оно может влиять на:
- человека с таким же гуа
- члена семьи
- человека с таким возрастом
- жильца, спящего в этой комнате
- определенный орган тела
Например, высохшее дерево на северо-западе говорит нам о том, что стоит обратить внимание на:
- человека с гуа 6
- главу семьи
- мужчину старше 45 лет
- голову
а острые камни на юге могут сигнализировать о проблемах со зрением или сердцем, а также о том, что гуа 9, средняя дочь или девушка с 15 до 30 лет может нуждаться в помощи.
О том, как читать по триграммам внутреннее пространство, мы поговорим в следующий раз.
PS Нам задают вопросы о том, кто же может принять участие в вебинаре «Углубленное изучение ландшафта по триграммам» 20 августа. Отвечаем: минимальное требование – знание триграмм и ассоциаций с ними. Но точно можно сказать – только вы начинаете или учились и практиковали уже приличное время – интересное для себя вы найдете! Кстати, идут последние дни регистрации, с 24 цена будет повышена.

